Vermietung: Restaurants
Restaurant am Koch-Park Zürich
| Region | Region Zürich |
| Standort / Lage | Flüelastrasse 50, 8047 Zürich |
| Übernahme / Bezug | per 1. Dezember 2026 |
| Monatsmiete | Monatsmiete: CHF 10'700.- |
| Anbieter | Genossenschaft Kraftwerk1, Zürich |
| Mehr Infos | https://kraftwerk1.ch/freie-objekte |
Wir suchen die Betreiber:innen der künftigen Hauptgastronomie direkt am Park im Koch-Quartier in Zürich. Als zentraler Treffpunkt im neuen Quartier bieten Sie das ganze kulinarische Spektrum an – frisch, regional, preiswert.
Dank seiner Lage am Koch-Park, im Zentrum des neu entstehenden Quartiers und direkt neben dem «Zirkusquartier», bietet sich die Chance, das neue Lokal als bestbesuchtes Restaurant im rasant wachsenden Zürcher Kreis 9 zu etablieren.
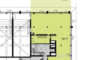
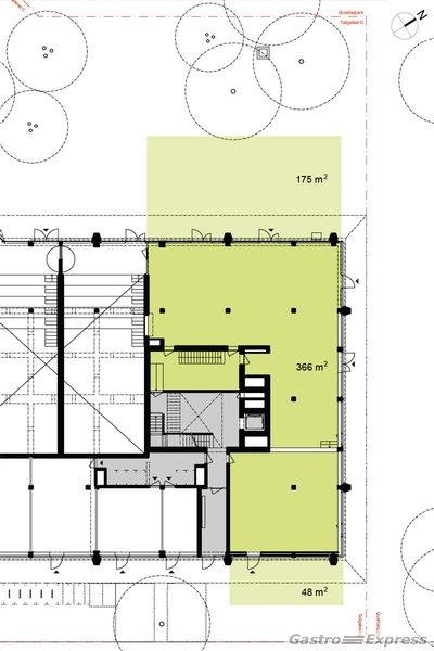
Die Gastrofläche belegt den gesamten ebenerdigen Bereich im Nordosten des Neubaus, der im 4. Quartal 2026 fertiggestellt wird. Sie ist auf zwei Seiten hin zum Park orientiert. Die Aussenbereiche erstrecken sich von der Flüelastrasse auf der Ostseite bis zur Abendsonne am Park; sie lassen sich zu jeder Tages- und fast jeder Jahreszeit nutzen. Das Innere weist drei Raumbereiche mit unterschiedlchen Stimmungen auf, die sich zum Beispiel als Café, Apérobar und Speiselokal nutzen lassen. Küchen- und Gästebereiche sind auf bis zu 120 Gäste ausgelegt, ebenso die Lager- und Technikräume, die wie die Toiletten im UG untergebracht sind.
Alle Facts und Figures finden Sie in der Ausschreibung unter https://kraftwerk1.ch/freie-objekte.
Nutzfläche EG: 365 m2 (CHF 200/m2/Jahr)
Nutzfläche UG: 245 m2 (CHF 100/m2/Jahr)
Nutzfläche aussen: 210 m2 (CHF 80/m2/Jahr)
Hardturmstrasse 134
8005 Zürich
Telefon: 078 677 13 01
https://kraftwerk1.ch/
